Villa indipendente con possibilità di piscina

In vendita
Villa
Padenghe sul Garda
985.000 €
Descrizione
Vista lago a Padenghe: oggi progetto, domani una villa di valore
In una delle zone residenziali più ricercate di Padenghe sul Garda, a pochi passi dal Lago di Garda, questa villa libera su quattro lati rappresenta un’opportunità rara per chi sa guardare oltre lo stato attuale e riconoscere il potenziale prima degli altri.
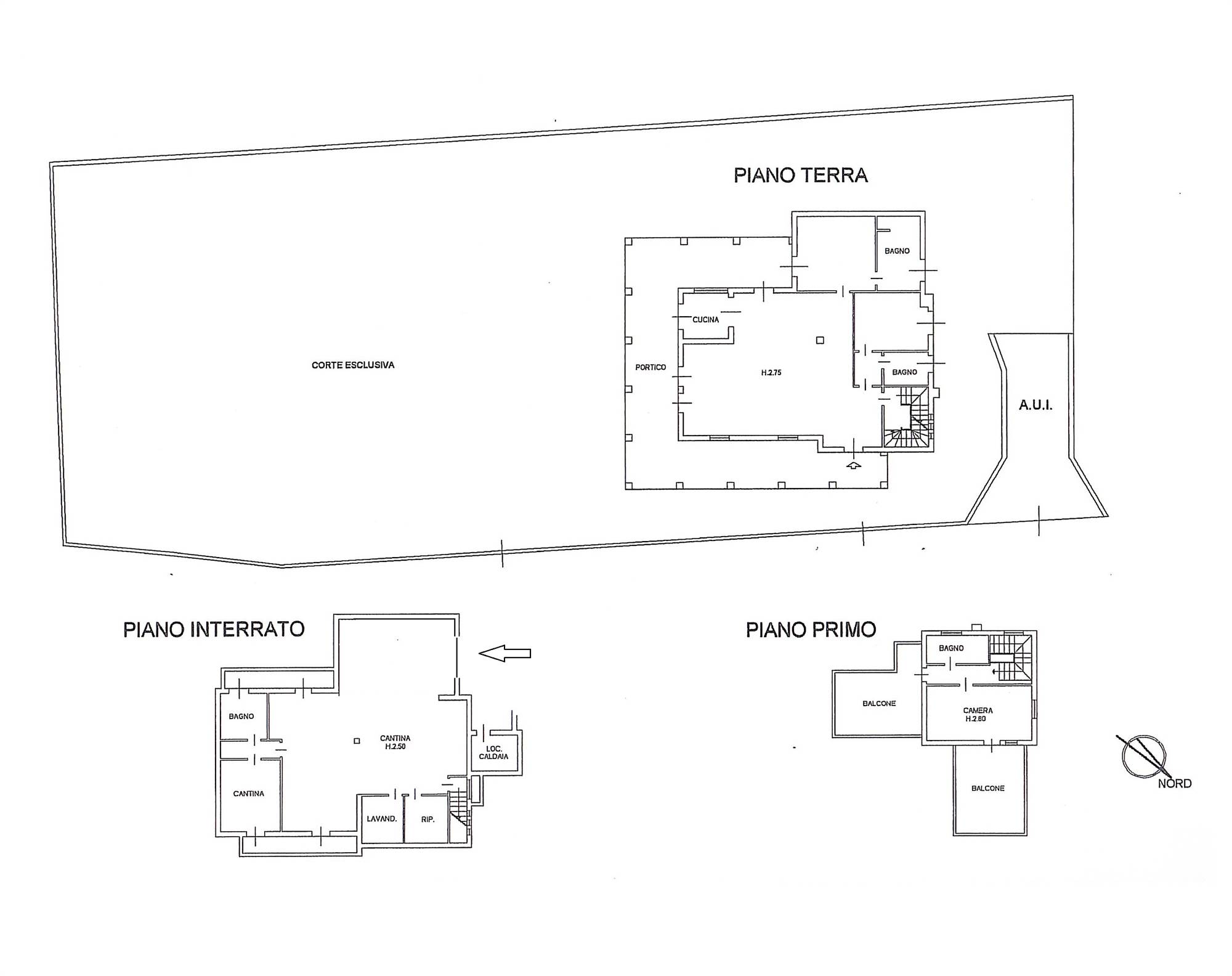
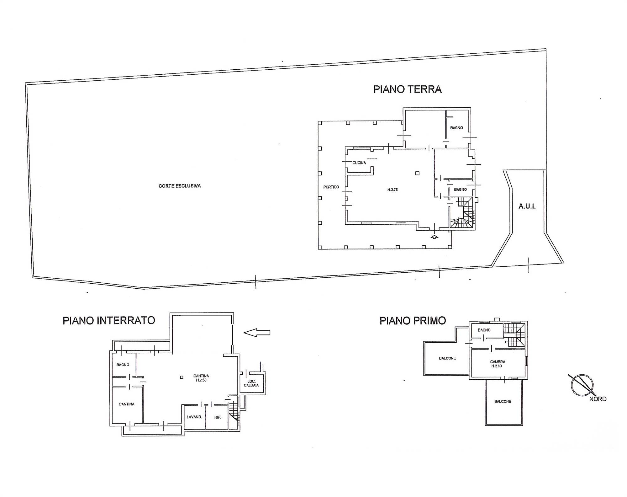
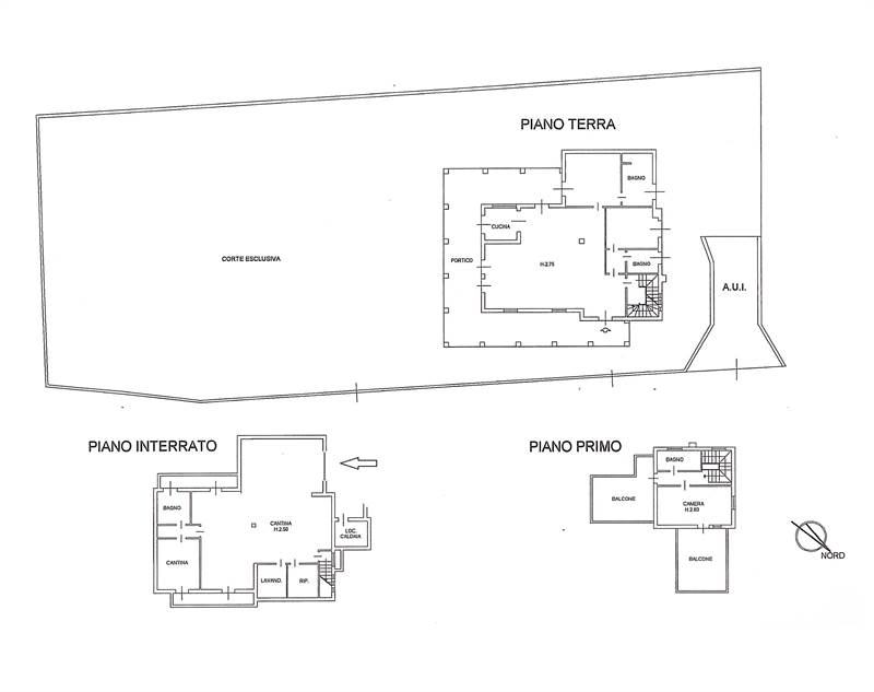
La proprietà si sviluppa su un’area complessiva di circa 2.770 mq, con 1.600 mq di giardino privato. Spazio, privacy, luce e una terrazza con vista lago che da sola racconta il futuro di questa casa.
Oggi l’immobile si presenta nello stato originale di fine anni ’90.
Ma la differenza è una: il progetto di ristrutturazione è già pronto e completo di preventivo esecutivo dettagliato.
Questo significa che non stai acquistando un’incognita.
Stai acquistando una visione già studiata, con numeri chiari e un risultato definito.
Il progetto prevede:
– Rifacimento completo degli impianti elettrico, idraulico e termico, Nuovi serramenti, porte interne e scuri, Bagni completamente rinnovati , Tetto e terrazze con isolamento termico, Cappotto termico esterno, Impianto fotovoltaico da 6 kW ,Piscina interrata 4x8 , Rifacimento totale della zona interrata (taverna e garage) , Riqualificazione completa del giardino con siepi e irrigazione
Con l’intervento previsto, l’immobile potrà raggiungere una classe energetica A, trasformandosi in una villa contemporanea, efficiente e pronta per il futuro.
Gli spazi interni sono generosi: due livelli abitativi, grande soggiorno, cucina separata, camere ampie, bagno privato nella matrimoniale. È possibile realizzare una quarta camera al piano terra, oltre all’ampia zona interrata che può diventare area wellness, palestra o spazio entertainment.
Questa è la soluzione per chi vuole entrare sotto il milione in una posizione di prestigio, controllare l’investimento e creare una residenza personalizzata con un valore finale superiore.
Non stai comprando solo una casa da ristrutturare.
Stai acquistando un progetto chiaro in una delle aree più richieste del Garda, con margine reale di valorizzazione.
Le informazioni presentate sono corrette ma non costituiscono presupposto contrattuale
COLLEBORIAMO CON TUTTE LE AGENZIE
Caratteristiche principali
Codice:
Villa Padenghe
Città:
Padenghe sul Garda
Categoria:
Villa
Locali:
4
Camere:
3
Bagni:
3
Mq:
395
Box:
1
Mq Box:
32
Mq Giardino:
1600
Piano:
Terra
Anno:
2024
Classe energetica:
F
121,11 kWh/m²a
Stato Immobile:
In Costruzione
Grado:
Signorile
Posizione:
Centro
Panorama:
Vista Lago
Lati Liberi:
4
Giardino:
Privato
Tipo Soggiorno:
Soggiorno
Tipo Cucina:
Cucinotto
Riscaldamento:
Autonomo
Tipo Riscaldam.:
Caldaia
Tipo Impianto:
Radiatori
Fonte Energetica:
Metano
Acqua Calda:
Autonoma
Raffrescamento:
No
Infissi:
Legno Doppio Vetro
Serramenti:
Discreto
Persiana:
Persiana Legno
Pavim. Giorno:
Gres Porcellanato
Pavim. Notte:
Gres Porcellanato
Pavim. Cucina:
Ceramica
Pavim. Bagno:
Ceramica
Accesso Disabili:
Nessuna Barriera
Accessori
Camino
Canna Fumaria
Doppi Vetri
Lavanderia
Passaggio Automobilistico
Mappa
Via A. Meucci, 20 - Padenghe sul Garda (BS)
Cookie preference