Palazzina di sei unità

In vendita
Stabile / Palazzo
Toscolano Maderno (Toscolano)
1.685.000 €
Descrizione
Proponiamo in vendita una palazzina composta da sei unità abitative, situata in posizione strategica a Toscolano Maderno. Un prodotto immobiliare ideale per investitori e imprese pronto per essere valorizzato, perfetto per chi cerca un intervento rapido e ad alto rendimento.
Punti di forza del prodotto
✔ Struttura già suddivisa in 6 appartamenti
Riduzione immediata di tempi, costi tecnici e pratiche di frazionamento. Ottimo punto di partenza per sviluppo, ristrutturazione o rivendita.
✔ Ideale per operazioni di valorizzazione
La palazzina si presta perfettamente a:
• ristrutturazione e vendita frazionata,
• realizzazione di residence turistico,
• affitti brevi di livello,
• locazioni a reddito.
Un immobile estremamente versatile.
✔ Zona con domanda costante
Toscolano è una delle aree del Garda con maggiore richiesta, sia turistica che residenziale. Investimento sicuro, con flussi stabili e facilità di collocamento del prodotto finito.
✔ Ottima redditività potenziale
Il mercato locale premia immobili ristrutturati di piccole e medie dimensioni. Interventi mirati consentono veloci incrementi del valore al mq e buoni margini operativi.
✔ Documentazione completa e disponibile
L’immobile dispone di tutta la documentazione necessaria per procedere senza attese: perfetto per chi vuole iniziare subito con progettazione e lavori.
Perché scegliere questo immobile
È un prodotto semplice da leggere, facile da gestire, con numeri chiari e un potenziale di valorizzazione molto interessante.
La combinazione tra posizione, struttura già divisa e richiesta turistica rende questa palazzina una opportunità concreta per imprese e investitori professionali.
Per informazioni, planimetrie, numeri previsionali o per fissare un appuntamento, siamo a disposizione.

Nota: sono state inserite immagini renderizzate per offrire una visione del possibile risultato futuro dopo ristrutturazione.
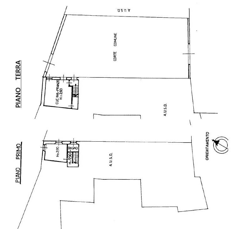
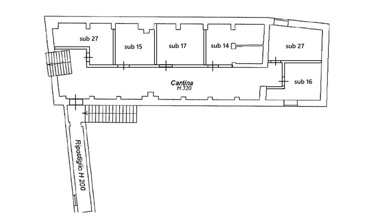
Struttura attuale
• Piano Terra – Bilocale di prestigio: 118 mq + portico 22 mq, grande taverna con possibile vetrata di 55 mq, cantina, giardino esclusivo di 900 mq, box e posto auto. (180 mq comm.li)
• Piano Terra – Bilocale ampio: 71 mq con giardino privato di 90 mq, cantina, box e posto auto. (96 mq comm.li)
• Piano Terra – Bilocale su due livelli: 61 mq con eventuale giardino privato di 60 mq, cantina, box e posto auto. (85 mq comm.li)
• Piano Primo – Trilocale: 93 mq con cantina, box e posto auto. (110 mq comm.li)
• Piano Primo – Bilocale con studiolo: 70 mq + terrazzo 6 mq, cantina, box e posto auto. (92 mq comm.li)
• Piano Secondo – Grande Trilocale (o Pentalocale): 134 mq + terrazza vista lago 25 mq, solaio abitabile 90 mq, cantina, box e posto auto. (246 mq comm.li)
• Box auto aggiuntivo di 16 mq.
• Possibile piscina comune in ampio giardino condominiale.

Plus della proprietà
• Ampie aree verdi con possibilità di ulteriori sviluppi.
• Posizione privilegiata: a soli 500 m dal fronte lago, con comodità a servizi e collegamenti.

Potenzialità di valorizzazione
• Residenza di pregio frazionata in più unità indipendenti.
• Investimento a reddito turistico con formula residence/B&B.
• Progetto di sviluppo immobiliare con ampliamento dei servizi comuni.
Le informazioni qui riportate sono corrette ma non costituiscono presupposto contrattuale.
Caratteristiche principali
Codice:
Palazzo Toscolano_Ristrutturato
Città:
Toscolano Maderno (Toscolano)
Categoria:
Stabile / Palazzo
Locali:
18
Bagni:
6
Mq:
730
Box:
7
Mq Box:
112
Posti auto:
12
Mq Giardino:
3000
Terrazzi:
1
mq Terrazzo:
25
Classe energetica:
G
366
Mappa
via Cavour , 52 - Toscolano Maderno (BS)
Virtual tour
Cookie preference