Abitazione in frazione su due livelli

In vendita
4 o più locali
Lonato del Garda (Esenta)
100.000 €
Descrizione
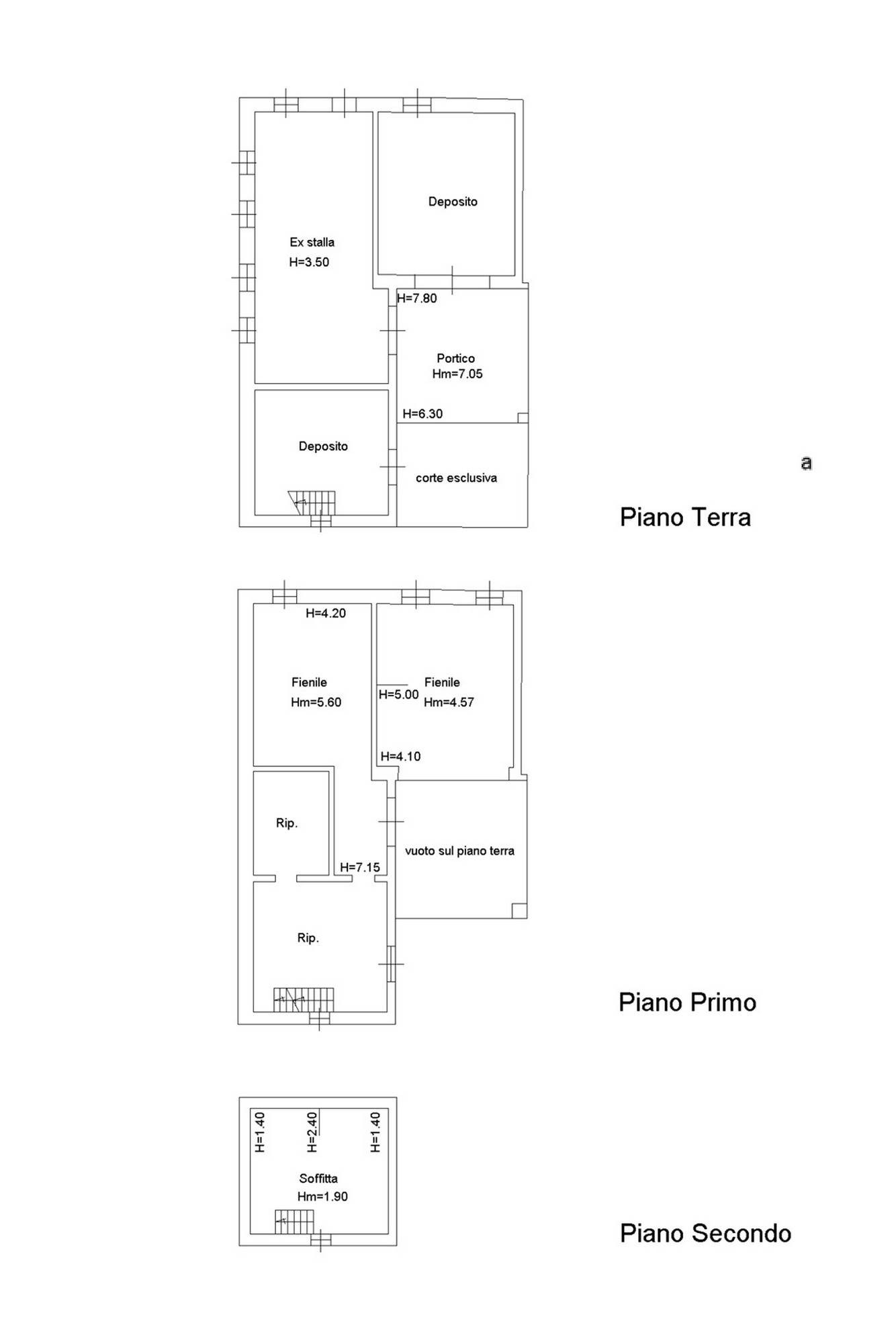
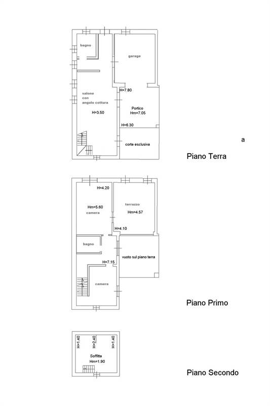
Lonato del Garda, vendesi in zona Esenta, Casale da ristrutturare con il tetto già sistemato, composta da due livelli.
La volumetria presente di circa mq 300, con i dovuti permessi è totalmente recuperabile, in aggiunta un terreno ad uso giardino di circa mq 150.
Cortile privato con posti auto
Classe energetica esente
Le informazioni presentate sono corrette ma non costituiscono presupposto contrattuale
SI COLLABORA CON TUTTE LE AGENZIE
Potete contattarci senza impegno per ottenere maggiori informazioni o per prenotare una visione dell’immobile a Lonato del Garda.

La zona dove si colloca l’immobile è immerso nella tranquillità delle colline moreniche Lonatesi, e nelle vicinanze si trova un prestigioso palazzo storico novecentesco, inoltre a pochi passi ci sono scuola elementare, un asilo, la chiesa della frazione e la fermata della linea pubblica dei bus che fa la tratta Desenzano – Lonato – Castiglione delle Stiviere
Le informazioni presentate sono corrette ma non costituiscono presupposto contrattuale
COLLEBORIAMO CON TUTTE LE AGENZIE
Potete contattarci senza impegno per ottenere maggiori informazioni o per prenotare una visione per questo rustico in vendita a Lonato del Garda.

Caratteristiche principali
Codice:
Esenta R.
Città:
Lonato del Garda (Esenta)
Categoria:
4 o più locali
Locali:
5
Camere:
3
Bagni:
2
Mq:
344
Box:
1
Posti auto:
1
Mq Giardino:
100
Anno:
1970
Classe energetica:
Non classificabile
Stato Immobile:
Da Ristrutturare
Grado:
Medio
Posizione:
Campagna
Lati Liberi:
2
Giardino:
Privato
Arredi:
Non Arredato
Tipo Soggiorno:
Sala da Pranzo
Tipo Cucina:
Abitabile
Riscaldamento:
No
Fonte Energetica:
Metano
Acqua Calda:
Assente
Infissi:
Legno
Serramenti:
Da Sostituire
Oneri Urbanizzazione:
Si
Accesso Disabili:
No
Mappa
Via Morandi , 33 - Lonato del Garda (BS)
Cookie preference